EL MACHISMO NO CESA
La violencia de género no da tregua: 2,4 denuncias al día en Ourense
La Xunta de Galicia ya ha presentado el proyecto para la sede en Ourense. El edificio, el cual llevan tratando de ubicar más de 30 años, se localizará en la avenida Otero Pedrayo, frente al edificio politécnico del campus de Ourense de la Universidad del Vigo.
La Xunta invertirá 25 millones de euros en esta obra, que dará lugar a un edificio de 8 plantas con 4 sótanos con parking. Además de la propia edificación de la sede, también se creará un espacio abierto detrás de la fachada trasera que actuará a modo de plaza con una superficie de 5.000 metros cuadrados.
La intención de la propuesta es el equilibrio entre el área edificada y el área que se libera a nivel del suelo, siendo crucial la relación lleno/vacío que se establecerá en el entorno con equipamiento público.
Actualmente, el espacio en el que se encontrará la plaza es un terreno vacío que se encuentra vallado junto a la residencia de estudiantes Resa As Burgas, que gracias a la creación de este espacio abierto por parte de la sede, permitirá un acceso más eficiente a las edificaciones universitarias.
La orientación de la edificación será sur, permitiendo una mayor incidencia de la luz solar durante más tiempo y aportando así una mayor claridad para las oficinas y la mayor eficiencia de los paneles solares que se instaurarán en la azotea como parte de las soluciones de ahorro energético.
Ante la crisis energética que atraviesa el mundo actualmente, la nueva sede cumplirá una serie de soluciones específicas que buscarán un ahorro energético eficiente:
1. Instalación de alumbrado con luminarias LED y sistema de control centralizado punto a punto con regulación en función de la luminosidad exterior.
2. Instalación de equipos elevadores de bajo consumo. Cuentan con sistemas que obtienen energía a través del movimiento en bajada-frenada. Su ahorro es del 70%
3. Contabilización de consumos. Los datos obtenidos de los consumos permitirán mejorar la eficiencia energética del edificio constantemente.
4. Reducción del consumo de agua potable. Recogida de agua de lluvias en aljibe y uso de aparatos sanitarios eficientes.
La superficie de la azotea estará cubierta por una capa de vegetación, que actuará como protección frente a la radiación solar en verano. Este método reducirá de modo importante el efecto isla de calor. En algunos casos se puede llegar a reducir la radiación incidente del 50 al 90%, evitando el sobrecalentamiento del edificio. En invierno la capa vegetal actúa también como aislante térmico, pero en vez de evitar que se introduzca el calor, evitará que salga del interior.
Actualmente, la especie vegetal que se baraja son especies pertenecientes al género sedum, un tipo de crasas o suculentas. Esto favorece en verano ya que son especies que se adaptan muy bien a la xerojardinería debido a su bajo requerimiento de riegos, sin embargo no soportan demasiado bien los excesos de agua, por lo que el drenaje y la infiltración del sustrato deberían ser muy altos.
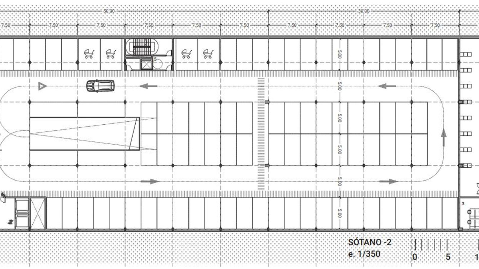
Como forma de fomentar las conductas medioambientales, el edificio pone a disposición de los usuarios un espacio exterior cubierto destinado al aparcamiento de bicicletas y patinetes, con visión directa desde la zona de control. Además, las plazas de parking cuentan con puntos de recarga para los vehículos eléctricos. Los sótanos -2, -3 y -4 contarán con más de 80 plazas de aparcamiento.
La primera planta ofrecerá acceso al parking desde la avenida Otero Pedrayo. La versatilidad y flexibilidad quedan garantizadas por la organización de las plantas: banda de servicios a sur y planta libre a norte. Esta distribución del programa garantiza la posibilidad de modificar los espacios de trabajo en base a los cambios que puedan sufrir las estructuras organizativas de la Xunta de Galicia
El desnivel del terreno y la diferencia de cota entre el vial y el jardín hace que el edificio pueda captar luz natural de orientación norte e introducirla en el auditorio. Desde el interior, la vista a través de ese óculo es directa hacia el cielo, por lo que la sensación de espacialidad del auditorio se ve incrementada. Durante la noche, el uso de este espacio tendrá un efecto contrario, actuando a modo de lámpara para el espacio público contiguo.
Un ambicioso proyecto que tendrá un gran impacto en el barrio de As Lagoas gracias a la aportación de un espacio público verde que facilitará el paso desde la residencia y A Loña. Además centralizará los servicios de la Xunta en Ourense.
Contenido patrocinado
También te puede interesar
EL MACHISMO NO CESA
La violencia de género no da tregua: 2,4 denuncias al día en Ourense
Los ingenieros agrícolas de Ourense renuevan su cúpula
Pepe Paz, presidente do Colexio de Enxeñeiros Agrícolas: “Temos que facer un novo rural con mais industrias agroalimentarias”
UNO MENOS QUE EN 2022
Ourense se acerca a su récord de colisiones provocadas por animales
CULTURA EN EL RURAL
La Red Provincial de Auditorios de Ourense alcanza los 7.500 espectadores
Lo último
INTRODUCE TU NÚMERO
Comprobador Lotería de Navidad 2025: ¿te ha tocado El Gordo?
PLANES EN OURENSE
Agenda | ¿Qué hacer en Ourense hoy, lunes 22 de diciembre?