Tres proyectos ourensanos optan a triunfar en la Mostra Nova Arquitectura Galega

ARQUITECTURA

El Colegio Oficial de Arquitectos de Galicia ha elegido los 30 proyectos que participarán en la Mostra Nova Arquitectura Galega, entre los que nos podemos encontrar tres proyectos de Ourense

J. P.
Publicado: 28 may 2024 - 20:45
Premios COAG.
Premios COAG.

Un año más, el Colegio Oficial de Arquitectos de Galicia (COAG) celebra la Mostra Nova Arquitectura Galega, unos premios que homenajean los proyectos elaborados por los arquitectos gallegos de menos de 40 años. El 22 de febrero del 2024 finalizó la fecha límite para la presentación de proyectos y este 27 de mayo se dieron a conocer los 30 proyectos que optarán a ser seleccionados, entre los que se encuentran tres proyectos en Ourense.

Tres proyectos de los 30 que han pasado la preselección están localizados en Ourense, ninguno de ellos en la ciudad. Estos tres proyectos son de lo más dispares entre sí, siendo uno un centro de salud, otro un centro termal y el último la recalificación de una ribera.

Valdeorras

Una imagen del proyecto.
Una imagen del proyecto.

Desde Valdeorras, el proyecto que opta a esta muestra, es la recalificación de los márgenes del río Sil a su paso por el concello del Barco de Valdeorras. Este proyecto, de Denis Wanders Rodríguez, que se plantea con la intención de zonificar el área de actuación y definir zona por zona el tipo de mantenimiento y el régimen de gestión que requiera, tiene como objetivo mejorar la biodiversidad local, además de plantear un área a disposición de los vecinos para disfrutar de la flora y la fauna.

Bande

El plano del proyecto.
El plano del proyecto.
Una imagen del posible resultado del proyecto.
Una imagen del posible resultado del proyecto.

Este proyecto pretende crear un nuevo espacio termal en el embalse de As Conchas, en Bande, junto las termas romanas que se encuentran en este mismo emplazamiento y en las proximidades del yacimiento romano de Aquis Querquennis. Este proyecto, de Marta Trigás, tiene como principales objetivos la puesta en valor del patrimonio histórico de la zona, la conservación e interpretación del significado e importancia de estos espacios termales para su perspectiva histórica, la integración paisajística de un nuevo equipamiento y la creación de un espacio de referencia en torno al bienestar y la salud.

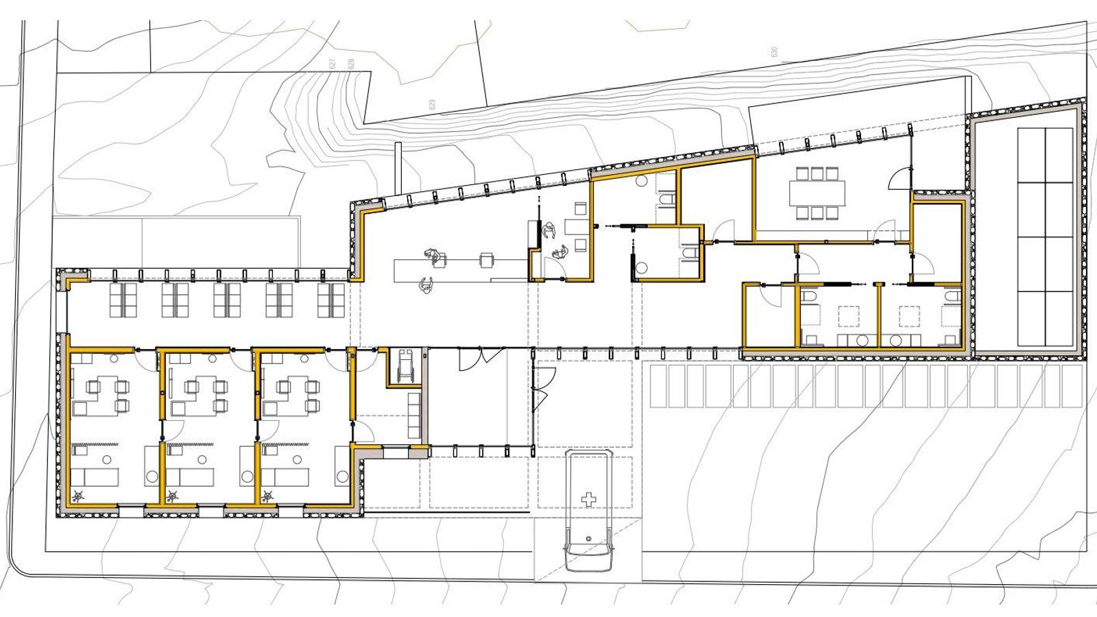
Muíños

Plano del proyecto del centro de salud.
Plano del proyecto del centro de salud.

Joana Covelo Alonso presento a esta muestra el proyecto de un centro de salud en Muíños cuyo diseño está muy determinado por la fuerte pendiente de la parcela en la que se emplaza. Con la implementación de este proyecto se marcarán varios objetivos, como obtener una relación equilibrada entre los desmontes y los terraplenes; hacer presente la carballeira que se encuentra en el lindero norte y que el espacio de parcela no ocupada por el centro quede integrado dentro del mismo.

Contenido patrocinado

stats